
am 09. April 2023 16:09 - zuletzt bearbeitet am 20. September 2023 09:22 von Selina
hallo guten Tag,
ich bin öfters auf Reisen und möchte im Winter die Temperatur meiner Heizung vor meiner Rückkehr etwas hochfahren.
Momentan ist noch das Modul "FW-100" verbaut und hat ein dünneres Anschlusskabel, welches zur Steckdose führt und darunter fest verklemmt wurde. Das wurde damals von der Heizungsfirma so angeschlossen. Das Hauptstromkabel der Therme führt unter Schuko-Stecker zur anderen Steckdose.
Ich habe das Modul noch nicht ausgebaut oder geöffnet, sondern nur das Panel heruntergeklappt und mir die Leitungen insgesamt betrachtet.
Das Bosch CT-200 hat zwei Anschlussschrauben. In Kommentaren weírd meist nur die Konfiguration im Netz erwähnt, aber nicht die technischen Ausführungen, welcher Kabel wohin gehören? Welches Kabel führt vom oder zu dem Easy Control CT-200 wohin und welche Spannung liegt da an?
Besten Dank und schönes Osterfeiertage
Achim
09. April 2023 17:48 - bearbeitet 09. April 2023 18:36
@Maxwell53 Da bist Du hier nicht im richtigen Forum. Hier geht es um Bosch Smarthome und nicht Heizungstechnik.
Der CT200 ist ein Raumtemperaturregler und unterstützt, glaube ich, keine Warmwasserbereitung. Schau besser mal im einem Forum für Heizungsanlagen, z.B. hier, oder sprich mit Deinem Heizungsinstallateur.
Auf der Bosch-Easycontrol Page gibt es auch einen Kompatibilitätscheck.
am 11. April 2023 11:51
hallo Geomo,
danke für den Hinweis. Ich habe das entprechende Forum gefunden.
Schöne Grüße Achim
09. April 2023 18:57 - bearbeitet 09. April 2023 18:58
Wie Geomo schon sagt , falsches Forum.
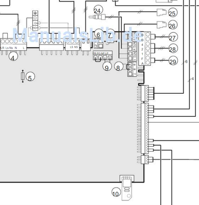
Das FW 100 und das CT 200 sind Bus-gesteuert ( 2 rote Kabel ,oben im Bild )
Das CT 200 wird außerhalb der Therme installiert , entweder Raumgesteuert im Referenzraum oder Außentemperatur gesteuert ,egal wohin. Da der FW 100 in der Therme verbaut ist musst Du ihn entfernen und 2 Buskabel dahin legen wo der CT200 hängen soll. Es gibt aber auch glaube ich eine Funklösung.
Auch würde ich bei Bosch oder einem Heizungsbauer mal nachfragen ob der CT 200 kompatibel ist zu deiner Heizung ist.
Was ich nicht verstehe " ein dünneres Anschlusskabel, welches zur Steckdose führt und darunter fest verklemmt wurde ".
am 11. April 2023 11:55
hallo Mazeza,
ich habe das Problem, wie ich den FW-100 rausklipsen soll und wo genau das Buskabel in der Therme angeschlossen ist? Ich könnte ja das Bus-Kabel der FW-100 benutzen und an das CT-200 anklemmen?
danke auch für die nützlichen Hinweise.
Schöne Grüße Achim DANKE!
am 11. April 2023 16:57
Lass ihn doch einfach drin und klemme nur die Buskabel ab ,so wie es auf dem Bild aussieht sind es die beiden gleichfarbigen oberhalb des FW 100 (es gehen doch nur 2 Kabel ins FW 100 oder) . Du musst sie nur verlängern und dahin führen wo der CT 200 hängen soll.
Die beiden Buskabel kann man auch nicht vertauschen ,ist egal wie rum sie angeschlossen
werden .
Der Busanschluss auf der Platine ist die Nr.27 B,B