abbrechen
Suchergebnisse werden angezeigt für 
Anzeigen  nur  | Stattdessen suchen nach 
Meintest du: 


Raumthermostat II anschließen mit Thermoblock atmoTEC VC/VCW

Elektrostylezzz
Advanced Homie

 

Liebe Community.

 

ich habe mal eine Frage.

 

Aktuell nutze ich das Tado V3+ System.

 

 

ich habe mir nun komplett das Bosch System zugelegt, da ich gerne nur ein Smart Home System nutzen wollte und weil ich den Vorteil darin sehe, dass ich das Bosch System natürlich miteinander besser kombinieren und arbeiten lassen kann.

 

Mir geht es jetzt um den Anschluss.

 

Ich weiß, dass es beim Tado System damals ein paar Probleme gab, die in der Therme oder am Thermostat selbst die Kabel anders angeschlossen werden mussten, als es aus der Tado Beschreibung hervorging.

 

Bevor ich mich jetzt an den Anschluss des Bosch Systems mache, wollte ich noch einmal nachfragen, ob mir einer Tipps zur Verkabelung geben kann.

 

Ich habe einmal Fotos hochgeladen, aus denen man mein aktuell gut funktionierendes Tado Thermostat sehen kann und wie es in der Gastherme aussieht.

 

Mir geht es nur darum, wo ich nun die Kabel an das Bosch Thermostat anschließe. Ich wäre für Unterstützung super dankbar.

 

Hier sieht man das angeschlossene Tado Thermosta. 

IMG_8487.jpeg

 

Hier das neue Bosch von hinten.

IMG_8488.jpeg

 

Hier zwei Bilder der Therme von Innen (Mit und ohne Blende) Am unteren Bild sieht man rechts die 3 Adern (20 V Anschluss)  die am Thermostat raus kommen.

 

IMG_8489.jpeg

IMG_8490.jpeg



43 ANTWORTEN 43

Zeitpläne sind kein Problem.

 

"Rudimentär" bezieht sich einerseits auf die Kriterien, nach denen die Therme gesteuert wird und andererseits auf die Schnittstelle zur Therme.

 

Die Zentralheizungssteuerung basiert wie gesagt ausschließlich auf einem Vergleich von Soll- und Ist-Temperatur. Ob und wie weit die Heizkörper-Thermostate die Ventile öffnen wird nicht berücksichtigt. Das Feature ist zwar recht neu, aber es gibt hier erste Erfahrungsberichte dazu, wie gut oder weniger gut das Zusammenspiel funktioniert, auch unter Berücksichtigung des ohnehin viel diskutierten Regelungsverhaltens des Heizkörper-Thermostat II.

 

Außerdem kann das Relais die Therme nur ein- und ausschalten, während dein Tado-Thermostat die analoge Schnittstelle nutzte und daher die Therme grundsätzlich auch die Brennerleistung anpassen kann. Ob sie das wirklich tut und wie sich das praktisch auswirkt sei dahingestellt. Da bist Du dann wirklich im Heizungstechnik-Bereich.

 

Außer dem Relais scheinst Du ja schon alles installiert zu haben. Probier es einfach aus und berichte gerne.

Privater Endanwender, kein Bosch-Mitarbeiter.
SHC II + Funk-Stick mit 38 Geräten + 12 Hue + Home Connect, 130 Automationen, OnePlus 7T mit Android 12

☝ gerne mitmachen! Info SHC Generation, Smartphone und Betriebssystem hilft häufig bei der Lösung von Problemen. Einfach im Profil bei "Persönliche Informationen" in der "Signatur" eintragen.

Guten Morgen.

Ich habe mir mal deine verlinkten Berichte in der Community angeschaut und bin tatsächlich deutlich schlauer geworden.

 

Ich habe nun auch die Steuerung „Zentralheizung“ SOLL/IST sehr gut verstehen können.

 

 

Das Relais habe ich jetzt zwar bestellt, werde es aber vermutlich auf Grund der Steuerung nicht verbauen. Vielleicht ein anderes mal oder für was ganz anderes nutzen. 

Der Grund für mich ist tatsächlich die Ansteuerung ohne Berücksichtigung der Ventilstellungen. 

Ich will jetzt mein Bosch / Tado Vergleich machen aber das ganze Heizsystem (zumindest mit alter GasTherme) ist schon ein ordentlicher Rücksschritt zum Tado. 

Hier bin ich tatsächlich etwas enttäuscht, dass Bosch bei der tollen Optik und den schier unendlich vielen Möglichkeiten im Bosch Smart Home System , so viel Potenzial verschenkt und nicht nutzt. 

Die HKT2 wären doch sicherlich in der Lage viel mehr Infos an das Relais oder das 230 V Thermostat zu geben und die Therme zu regeln. 

Ich verkaufe mein Tado erst mal nicht, lasse das Bosch aber trotzdem vorerst installiert. 

Mir persönlich gefällt die Optik besser und ein paar Vorteile hat es ja auch. 

Abofreie automatische Fenstererkennung zum Beispiel ( sogar verzögerungsfrei mit den Fenster/Türkontakten ) 

 

Ich finde, dass die HKT2 von Bosch auch deutlich leiser sind als die Tado V3+  dafür aber gefühlt langsamer (klingen schwerfälliger)

 

Wenn ich die HKT2 geregelten Heizkörper einfach heiß haben will, dann geht das auch besser als mit TADO, die bei 25 Grad begrenzt sind. 

 

Die Bosch fallen auch nicht gleich vom Heizkörper wie die Tado wenn man mal dran kommt und die Heizung gerade voll geöffnet ist. Gerade bei kleinen Kindern echt nervig.

 

Gibt sicherlich vieles an vor oder Nachteilen.

 

Ich habe die beiden HKT2 im Wohnzimmer als Temperaturführenden Raum nun entfernt und meine Zeitpläne so eingerichtet, dass das Wohnzimmer zum Zeitpunkt eines Plans auch warm wird. 

Da ich alles eh sehr offen habe, also keine Türen außer in den Badezimmern, Kinder und Schlafzimmer sowie Wintergarten aber das Wohnzimmer zum Flur und Küche nur offene große Rundbögen, ist es ohnehin fraglich ob es mit Tado eine große Ersparnis gibt wenn ich nur Küche und Flur heize um zu sparen, die warme Luft aber schnell ins „kalte Wohnzimmer“ entweicht und Küche und Flur schneller wieder nachheizen müssen.  Vielleicht verstehst du ja was ich meine.

 

Ich teste es jetzt erst mal und möchte mich wirklich noch mal super doll für die wirklich Mega gute und geduldige Hilfe bedanken. (Auch besser als bei Tado) 🙂 

 

Vielen Dank noch mal und frohe Weihnachten. 

OliverR
Junior Homie

Hallo Community,

dies ist scheinbar der erste Thread, der das Thema Zentralheizungssteuerung über Smart Relay statt Raumthermostat 230V auch nachvollziehbar darstellt. Jedoch ist es durch die andere Lösung mittels Raumthermostat 230V für nun wiederum auch als Steuerung der gesamten Wohnfläche durch ein Zimmer ein bisschen verwaschen worden.

Andere User und ich würden uns freuen, wenn man das ganze nochmal gesamt als Lösung zusammenfassen kann.

 

Was ich für eine Therme habe:
Vaillant VCW DE 196/3-5 R3 ecoTEC-plus 


Wie ich es verstanden habe:
1. Wer eine Gastherme hat (z.B. wie hier Vaillant) und seine Räume gern mittels Heizungs-Thermostaten ausstatten möchte, sowie eine individuelle Einzelraumsteuerung (z.B. nur das Bad soll geheizt werden und entsprechend dem Bedarf wird die Gastherme geschaltet) umsetzen möchte, sollte NICHT das Raumthermostat 230V wollt verwenden, wie es irrtümlicherweise auch bei Bosch im Marketing kommuniziert wird, sondern das Bosch Smart Relais verwenden.
2. Besterweise sollte ein bestehendes angeschlossenes Raumthermostat (von Vaillant) vom BUS System abgebaut werden, um die Logik der Therme nicht durcheinander zu bringen.
3. Die Gastherme soll nur über die dafür vorgesorgten Verbindungen mittels Drähte (sicherlich muss der Schaltplan der Gastherme dafür beachtet werden) mit dem Smart Relais verbunden werden.
4. Das Smart Relais muss separat mit Strom versorgt werden (am Smart Relais N und L), entweder durch eine eigene Zuleitung oder angehängt (je nach Schaltplan) an die Gastherme.
5. Wird die "Thermostat-Verbindung" per Kabel dann zwischen Gastherme (Bezeichnung 24V RT) und Smart Relais bei Schalteingang und Schaltausgang durchgeführt?
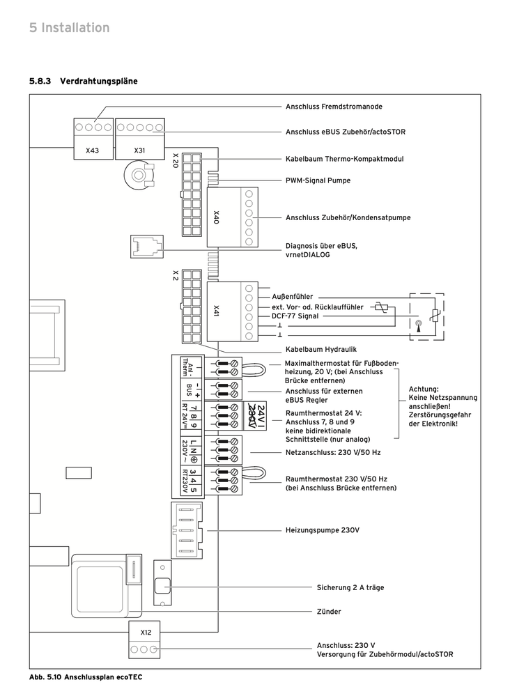
Bei der Verkabelung stehen auf der Platine die Anschlüsse 7/8/9 mit der Bezeichnung
"Raumthermostat 24 V: Anschluss 7, 8 und 9 keine bidirektionale Schnittstelle (nur analog)" zur Verfügung. Muss dann eine "Brücke" her? 

 

Bildschirmfoto 2025-01-24 um 18.23.05.png
Besteht die Gefahr der Verwechslung und Beschädigung?

Viele Grüße
Oliver

 

1. - 4.: Korrekt.

5.: 7-8-9 ist eine analoge Schnittstelle (Stetigregelung), das smarte Relais kann aber nur ein- und ausschalten. Daher schließt Du es an 3-4 an (Brücke entfernen).

Privater Endanwender, kein Bosch-Mitarbeiter.
SHC II + Funk-Stick mit 38 Geräten + 12 Hue + Home Connect, 130 Automationen, OnePlus 7T mit Android 12

☝ gerne mitmachen! Info SHC Generation, Smartphone und Betriebssystem hilft häufig bei der Lösung von Problemen. Einfach im Profil bei "Persönliche Informationen" in der "Signatur" eintragen.



Rechtswidrigen Inhalt melden